Planungen werden nur mehr in Verbindung eines Gesamtauftrages angeboten.
Bitte haben Sie Verständnis, dass wir keine Informationen vorab weitergeben. Fragen wie „Der Installateur und Elektriker sind gerade auf der Baustelle und müssen wissen wo was hinkommt“ werden ohne Auftrag nicht mehr beantwortet. Um korrekte Angaben zu machen, müssen wir uns seriös mit Ihrer Baustellensituation auseinandersetzen, und sich in Ihr Projekt hineindenken.
Wir müssen uns ja seriös mit der Baustellensituation auseinandersetzen, und uns in Ihr Projekt hineindenken um korrekte Angaben zu machen.
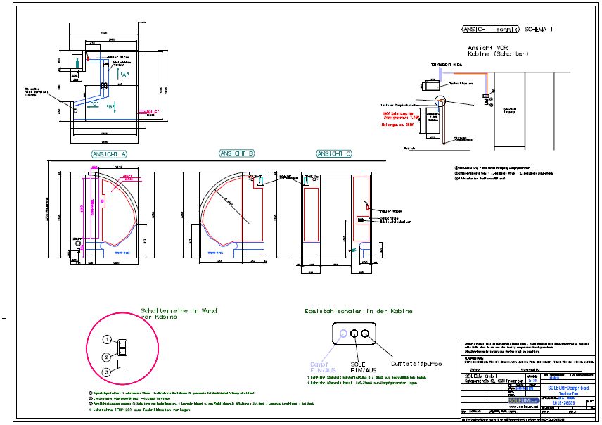
Nach Zahlungseingang beschäftigen wir uns mit Ihrem Projekt zumeist binnen einer Woche (je nach Auslastung) und Sie erhalten dann den Dampfbadplan. Diesen können wir gemeinsam auch mit Ihren Professionisten besprechen und gegebenenfalls auch abändern. Selbstverständlich erhalten Sie auch beim Kauf der Dampfbadtechnik (Dampfgenerator, usw. ) die notwendigen Informationen zu den Vorbereitungs- bzw. Installationsarbeiten.
Wir begleiten auch Ihr Projekt beim Bau und sprechen uns -falls gewünscht- mit Ihren Handwerkern ab damit alles richtig eingebaut und nichts vergessen wird.

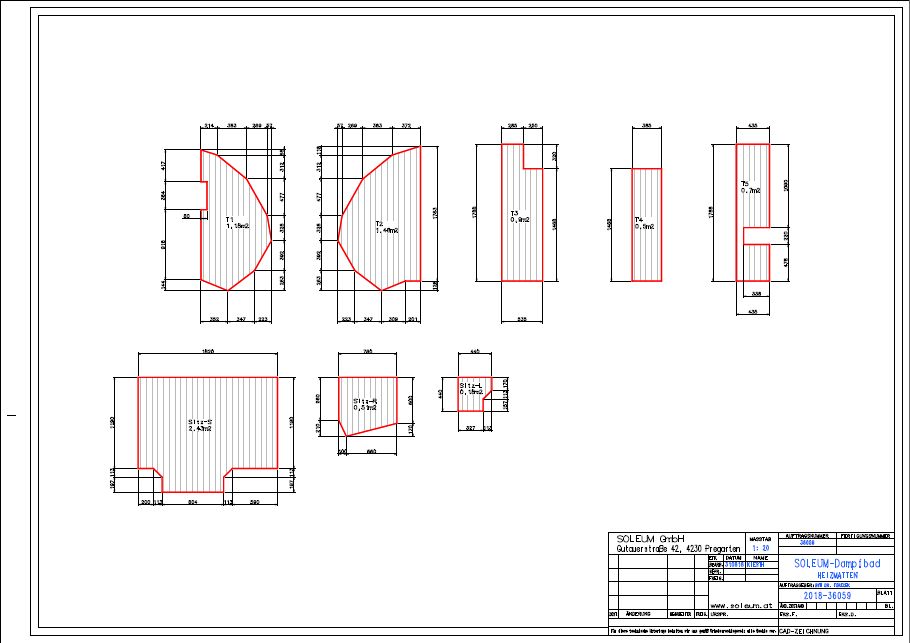
Wir erstellen ihnen für unsere Module einen kostenpflichtigen Heizmattenplan (lt. Angebot) – die Heizmatten werden auf Maß für Ihr Projekt produziert. Auch beim Selbstbau können Sie hier keine Fehler machen.
